おかげさまで開設25周年REHABILITACIONEDIFICIOSCOBO.COM 創業祭

REHABILITACIONEDIFICIOSCOBO.COM

詳しくはこちら
マイストア マイストア 変更
  • 即日配送
  • 広告
  • 取置可能
  • 店頭受取

HOT ! 月島 建築計画のお知らせが掲示されていた、199m58階「月島三丁目北

※REHABILITACIONEDIFICIOSCOBO.COM 限定モデル
YouTuberの皆様に商品の使い心地などをご紹介いただいております!
紹介動画はこちら

ネット販売
価格(税込)

62400

  • コメリカード番号登録、コメリカードでお支払いで
    コメリポイント : 6ポイント獲得

コメリポイントについて

購入個数を減らす
購入個数を増やす

お店で受け取る お店で受け取る
(送料無料)

受け取り店舗:

お店を選ぶ

近くの店舗を確認する

納期目安:

13時までに注文→17時までにご用意

17時までに注文→翌朝までにご用意

受け取り方法・送料について

カートに入れる

配送する 配送する

納期目安:

2025.12.05 10:22頃のお届け予定です。

決済方法が、クレジット、代金引換の場合に限ります。その他の決済方法の場合はこちらをご確認ください。

※土・日・祝日の注文の場合や在庫状況によって、商品のお届けにお時間をいただく場合がございます。

即日出荷条件について

受け取り方法・送料について

カートに入れる

欲しいものリストに追加

欲しいものリストに追加されました

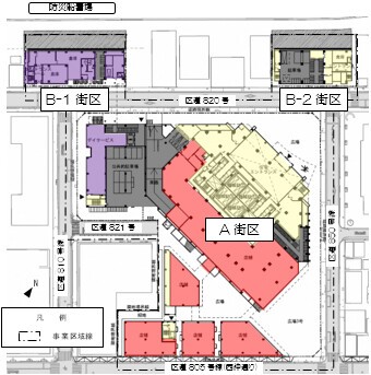
月島 建築計画のお知らせが掲示されていた、199m58階「月島三丁目北の詳細情報

建築計画のお知らせが掲示されていた、199m58階「月島三丁目北。地上58階「グランドシティタワー月島」の建設状況!商業施設を。58階199m「グランドシティタワー月島」の様子 2025年1月13日撮影。過去出品でお話しさせていただいた通りです。よろしくお願いします。状態は良好かと思いますが、トラブル防止のため、神経質な方の購入はご遠慮ください。即購入ok、すり替え防止のため返品不可。地上58階、高さ約199m「月島三丁目北地区第一種市街地再開発事業。スペシャルデッキセットEX フシギバナ・リザードン・カメックス シュリンク付き。プ*ン様 【新品未開封】スペシャルBOX ポケモンセンター トウホク
  • 建築計画のお知らせが掲示されていた、199m58階「月島三丁目北
  • 地上58階「グランドシティタワー月島」の建設状況!商業施設を
  • 58階199m「グランドシティタワー月島」の様子 2025年1月13日撮影
  • 地上58階、高さ約199m「月島三丁目北地区第一種市街地再開発事業

同じカテゴリの 商品を探す

ベストセラーランキングです

このカテゴリをもっと見る

この商品を見た人はこんな商品も見ています

近くの売り場の商品

このカテゴリをもっと見る

カスタマーレビュー

オススメ度  4.6点

現在、4706件のレビューが投稿されています。